JL-G端子排靜態電流繼電器開孔尺寸及技術條件-上海上繼科技有限公司
發表時間:2019-12-15 20:39 瀏覽次數:1147 〖返回〗
一、JL-G端子排靜態電流繼電器概述
JL-G端子排靜態電流繼電器(以下簡稱本繼電器)用于電動機、發電機、變壓器和輸電線路中,作為電力系統交流回路的過電流保護、欠電流保護或過負荷、短路的啟動元件,給出報警信號或切除故障。
二、JL-G端子排靜態電流繼電器型號分類及含義

三、JL-G端子排靜態電流繼電器使用方法

四、JL-G端子排靜態電流繼電器技術條件
1、電流整定范圍: 0.1~99.9A,整定級差: 0.1A; 0.02~9.99A,整定級差: 0.01A;
2、返回系數: 過流0.90~0.95,欠 流1.05~1.11
3、整定誤差: 電流整定平均誤差≤±3%,平均誤差=( 5次測量平均值-整定值)/整定值×100%
4、功率消耗: 輔助電源≤5VA;啟動電源≤1VA。
5、絕緣電阻: 繼電器各帶電端子對外露非帶電端子或外殼之間, 用開路電壓500V的兆歐表測量,絕緣電阻>300MΩ。
6、介質強度: 繼電器各帶電端子對外露非帶電端子或外殼之間,能承受2KV(Hz的交流電壓,歷時1分鐘無擊穿或閃絡現象。
7、抗干擾性: 符合DL478-92 <<靜態繼電保護裝置及安全自動裝置通用技術條件>>和GB7261GB6261 <<靜態繼電器及保護裝置的電氣抗干擾試驗>>中的有關規定。
8、觸點容量,在電壓不超過250V,電流不超過1A,時間常數為5ms±0.75ms直流有感負荷電路中,斷開容量為50W;在電壓不超過250V,電流不超過2A cosφ =0.4 0. 5 6 9、觸點壽命: 電壽命10 次 ,機械壽命10 次; 10、動作時間:≤25ms(過流1.2倍整定值,欠流0.5倍整定值) 11、返回時間:≤25ms(過流0.5倍整定值,欠流1.2倍整定值) 12、輔助電源: AC/DC 48 V,110V,220V;訂貨時請注明其它電壓等級可訂做。(交直流通用) 觸點容量:在電壓不超過 ,電流不超過 ,時間常數為 ± 直流有感負荷電路中,斷開容量為 ;在電壓不 超過 ,電流不超過 ,功率因數為φ±1的交流電路中,斷開容量為250VA。輸出觸點在上述規定的負荷條件下, 產品能可靠動作及返回10萬次。輸出觸點長期允許接通電流為5A。
9、觸點壽命: 電壽命105次 ,機械壽命106次;
10、動作時間:≤25ms(過流1.2倍整定值,欠流0.5倍整定值)
11、返回時間:≤25ms(過流0.5倍整定值,欠流1.2倍整定值)
12、輔助電源: AC/DC 48 V,110V,220V;訂貨時請注明其它電壓等級可訂做。(交直流通用)
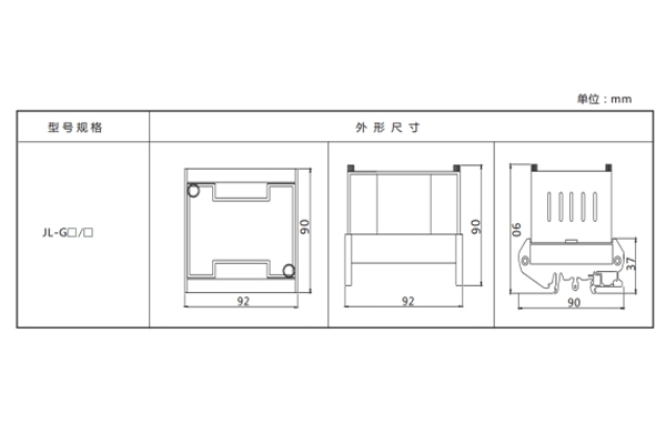
五、JL-G端子排靜態電流繼電器外形尺寸、開孔尺寸及端子圖

公司介紹:上海上繼科技有限公司是一家專業從事電力系統繼電保護及智能電網電力自動化產品的研發、設計、生產、銷售和服務為一體的高科技公司。擁有資深繼電保護專家團隊和國內**的檢測儀器及校驗設備。同時還引用國內外先進技術,來進行技術創新。本公司的產品廣泛用于電力、工礦、鐵路、建筑等國家重大工程輸配變電系統上,產品遠銷東南亞及中東地區。產品通過國家繼電保護及自動化設備質量監督檢驗中心檢測,獲得ISO9001國際質量體系認證。“科技創新,誠信務實”是公司的經營理念,本公司以高超的技術支持和對用戶高度負責的售后服務贏得了輸配電成套企業的信賴,且樹立了良好的信譽。
公司主營:繼電器(時間繼電器,電壓繼電器,電流繼電器,中間繼電器,信號繼電器,閃光繼電器,沖擊繼電器,同步檢查繼電器,接地繼電器,差動繼電器,重合閘繼電器,絕緣監視繼電器,雙位置繼電器,模數化繼電器),微機保護裝置,電力儀表,智能操控裝置
上海上繼科技有限公司(專注電力保護繼電器生產廠家)銷售熱線:021-57233089 QQ:1932551438
{以上內容僅供參考,上海上繼科技有限公司有最終解釋權}
更多繼電器精彩文章——SSJ-32A靜態時間繼電器工作原理及使用方法





