ZC-23沖擊繼電器的接線圖與開孔尺寸-上海上繼科技有限公司
發表時間:2019-04-15 08:04 瀏覽次數:1256 〖返回〗ZC-23沖擊繼電器應用范圍:
ZC-23沖擊繼電器(以下簡稱繼電器),廣泛用于直流操作的繼電器保護及自動控制回路中,作為集中控制信號元件
ZC-23沖擊繼電器主要技術參數:
·額定電壓:DC220V、110V、48V、24V。
·最小沖擊動作電流: ZC-23型不大于0.16A, ZC-23A型不大于0.015A。
·**穩定電流: ZC-23型為3.2A, ZC-23A型為1.5A。
·功率消耗:在變流器BL一次繞組通**穩定電流時.其功率消耗不大于7W;出口繼電器ZJ在額定電壓下,動作狀態時功耗不大于10W。
ZC-23型沖擊繼電器內部接線圖及外引接線圖:

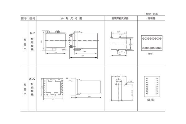
ZC-23沖擊繼電器外形及開孔尺寸:

上海上繼科技有限公司(專注電力保護繼電器生產廠家)銷售熱線:021-57233089 QQ:1932551438
{以上內容僅供參考,上海上繼科技有限公司有最終解釋權}
更多繼電器精彩文章——DX-10C閃光繼電器的說明書





