JY-ZB電壓繼電器參數及開孔尺寸-上海上繼科技有限公司
發表時間:2019-07-20 16:29 瀏覽次數:1053 〖返回〗
一、JY-ZB電壓繼電器的概述
電壓繼電器是一種電子控制器件,它具有控制系統(又稱輸入回路)和被控制系統(又稱輸出回路),通常應用于自動控制電路中,它實際上是用較小的電流去控制較大電流的一種“自動開關”。故在電路中起著自動調節、安全保護、轉換電路等作用。主要用于發電機、變壓器和輸電線的繼電保護裝置中,作為過電壓保護或低電壓閉鎖的啟動原件。
二、JY-ZB電壓繼電器的接線圖

三、JY-ZB電壓繼電器的參數
1.額定直流電壓: 110V、220V
2.動作整定范圍:
額定直流電壓110V:高值110V-150V,低值80V-110V;
額定直流電壓220V:高值220V-260V,低值190V-220;
3.動作時間: 2倍動作值時,動作時間不大于20ms
4.定值誤差:不大于±2%
5.返回系數:高值不小于0.97 ,低值不大于1.02
6.功耗:在額定電壓下,繼電器功耗不大于6W
7.觸點性能:當時間常數為5ms的電感性負載時,繼電器觸點斷開容量為交流電壓250V時,交流不大于2A,直流電壓為24V時,電流不大于5A。
8.絕線電阻:繼電器外殼與各端子間,以及電氣上無聯系的各電路之間的絕緣電阻不小于300M0。
9.介質強度:繼電器外殼與各端子間以及電氣上無聯系的各電路之間的絕緣強度,應能承受2kV, 50Hz交流電壓,歷時1min無閃絡與擊穿現象。同組接點間應能承受1kV,50Hz交流電壓,歷時1min無閃絡與擊穿現象。
10.抗干擾性能:符合GB7261和GB6261 ?靜態繼電器及保護裝置的電氣干流試驗? 。
四、JY-ZB電壓繼電器的使用方法
該繼電器高值和低值可分別通過面板上的拔輪開關進行整定,根據面板上的整定公式可在繼電器規定的整定范圍內任意調節(調節幅度不小于1V) ,拔率合開關分別對應整定公式中的十位和個位。
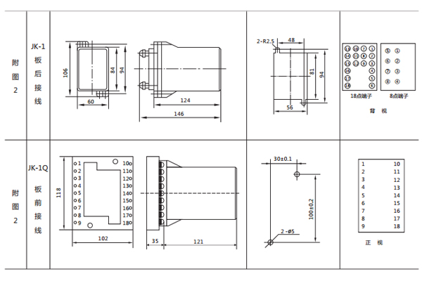
五、JY-ZB電壓繼電器的開孔尺寸

公司介紹:上海上繼科技有限公司是一家專業從事電力系統繼電保護及智能電網電力自動化產品的研發、設計、生產、銷售和服務為一體的高科技公司。擁有資深繼電保護專家團隊和國內**的檢測儀器及校驗設備。同時還引用國內外先進技術,來進行技術創新。本公司的產品廣泛用于電力、工礦、鐵路、建筑等國家重大工程輸配變電系統上,產品遠銷東南亞及中東地區。產品通過國家繼電保護及自動化設備質量監督檢驗中心檢測,獲得ISO-9001:2000國際質量體系認證。“科技創新,誠信務實”是公司的經營理念,本公司以高超的技術支持和對用戶高度負責的售后服務贏得了輸配電成套企業的信賴,且樹立了良好的信譽。
上海上繼科技有限公司(專注電力保護繼電器生產廠家)銷售熱線:021-57233089 QQ:1932551438
{以上內容僅供參考,上海上繼科技有限公司有最終解釋權}
更多繼電器精彩文章——JY-1A/2電壓繼電器參數及開孔尺寸





