JZY-415靜態中間繼電器特點及接線圖-上海上繼科技有限公司
發表時間:1970-01-01 07:59:60 瀏覽次數:4489 〖返回〗
一、JZY-415靜態中間繼電器
內部接線圖及外引接線圖

二、JZY-415靜態中間繼電器
特點
1.靜態中間繼電器采用線圈電壓較低的多個優質密封小型繼電器組合而成,防潮、防塵、不斷線,可靠性高,克服了電磁型中間繼電器導線過細易斷線的缺點。
2.功耗小,溫升低,不需外附大功率電阻,可任意安裝及接線方便。
3.繼電器觸點容量大,工作壽命長。
4.繼電器動作后有發光管指示,便于現場觀察。
5.延時只需用面板上的撥碼開關整定,延時精度高,延時范圍可在0.02-5.00S任意整定。
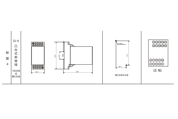
三、JZY-415靜態中間繼電器
外形及開孔尺寸

四、JZY-415靜態中間繼電器技術條件
1、環境基準條件
環境溫度: 20°C±2°C
相對濕度:45%~74%
大氣壓力:80Kpa~106Kpa
2、正常使用條件
環境溫度:-25°C~+40°C
環境相對濕度:不大于90%
大氣壓力:80Kpa~110Kpa
存儲和運輸過程中的極限溫度: -25°C~75°C
使用地點的海拔高度:不高于2500米
使用環境的周圍介質無爆炸危險品;不含有腐蝕性氣體;所含導電塵埃的濃度不應使絕緣水平降低到允許值以下。
3、 繼電器額定值 額定電壓值:48V, 110V, 220V, AC, DC, 380VAC。
4、觸點容量 在電壓不大于250V,功率因數cosΦ為1.0的交流電路中,可分斷10A。
直流:普通型:接通DC220V, 10A;斷開DC220V,τ=5mS, 50W負載。
B型:接通DC220V, 10A;斷開DC250V, τ=5mS, 500W大容量角空點,極限容量為1500W。
5、 保持值 0.7 ~ 1.2倍額定電壓 JZ-系列快速中間繼電器動作時間和返回時間不大于15mS。
6、 功耗 在額定電壓下不大于6W。
7、絕線電阻 用1000V揺表測量各引出端子對外殼鎖緊螺釘之間絕緣電阻不小于10MΩ。8絕緣電壓 各引出端子對外殼鎖緊螺釘能承受工頻2000V,同組觸點之間能承受工頻1000V,歷時一份鐘試驗,無擊穿。
8、電壽命 A型: DC250V回路,切斷電流,τ=5mS, 50W, 10?次以上;
B型: DC250V回路,切斷電流τ=5mS, 500W, 104次以上; 1500W, 103次。
9、機械壽命 觸點無負荷300萬次以上。





