JZD-410中間繼電器電磁兼容及主要性能-上海上繼科技有限公司
發表時間:2019-08-06 15:13 瀏覽次數:801 〖返回〗
一、JZD-410靜態中間繼電器
電磁兼容
A,震蕩波抗擾度檢驗符合IEC60255-22-1:1988的規定:III級;
B,靜電放電抗擾度檢驗符合IEC60255-22-2:1996的規定:III級;
C,射頻電磁場輻射抗擾度檢驗符合IEC60255-22-2:1989的規定:III級;
d,電快速瞬變脈沖群抗擾度檢驗符合IEC60255-22-4:1992的規定:IV級;
e,浪涌抗擾度檢驗符合IEC60255-22-5:2002的規定:III級;
f,射頻傳導抗擾度檢驗符合IEC60255-22-6:2001的規定:III級;
g,工頻抗擾度檢驗符合IEC50255-22-7:2003的規定:A級;
h,工頻磁場抗擾度檢驗符合IEC61000-4-8:1993的規定:V級;
i,脈沖磁場抗擾度檢驗符合IEC61000-4-9:1993的規定:IV級;
j,阻尼震蕩磁場抗擾度檢驗符合IEC61000-4-10:1993的規定:IV級;
K,諧波電流發射限值檢驗符合IEC61000-3-2:2001的規定:A級;
l,電壓波動和閃爍的限制檢驗符合IEC61000-3-3:1994的規定;
m,傳導發射限值檢驗符合IEC60255-25:2000的規定。
二、JZD-410靜態中間繼電器
內部接線圖及外引接線圖

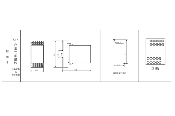
三、JZD-410靜態中間繼電器
外形及開孔尺寸

四、JZD-410靜態中間繼電器
特點
1.靜態中間繼電器采用線圈電壓較低的多個優質密封小型繼電器組合而成,防潮、防塵、不斷線,可靠性高,克服了電磁型中間繼電器導線過細易斷線的缺點。
2.功耗小,溫升低,不需外附大功率電阻,可任意安裝及接線方便。
3.繼電器觸點容量大,工作壽命長。
4.繼電器動作后有發光管指示,便于現場觀察。
5.延時只需用面板上的撥碼開關整定,延時精度高,延時范圍可在0.02-5.00S任意整定。
五、JZD-410靜態中間繼電器
用途
可調延時中間繼電器用于直流或交流操作的各種保護和自動控制線路中,作為輔助繼電器,以增加觸點數量和觸點容量。可根據需要自由調節通電延時或斷電延時的時間。
上海上繼科技有限公司(專注中間繼電器生產廠家)銷售熱線:021-57233089 QQ:1932551438
(以上內容僅供參考,上海上繼科技有限公司有最終解釋權}
更多繼電器精彩文章→JZD-214靜態中間繼電器型號含義及特點





