JZ-S/425靜態可調延時中間繼電器產品圖片及接線圖-上海上繼科技有限公司
發表時間:2019-10-28 21:41 瀏覽次數:563 〖返回〗
一、JZ-S/425靜態可調延時中間繼電器概述
JZ-S/425靜態延時中間繼電器,用于各種繼電保護和自動控制裝置中,以增加保護盒控制回路的觸點數量和觸點容量,可自由調節所需的通電延時和斷電延時。
二、JZ-S/425靜態可調延時中間繼電器內部接線圖及外引接線圖

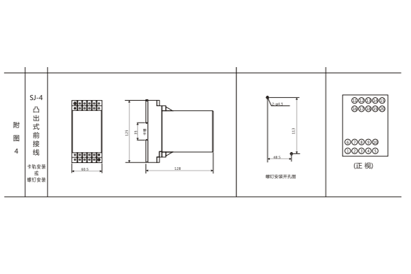
三、JZ-S/425靜態可調延時中間繼電器外形結構及開孔尺寸圖

四、JZ-S/425靜態可調延時中間繼電器特點
1.靜態中間繼電器采用線圈電壓較低的多個優質密封小型繼電器組合而成,防潮、防塵、不斷線,可靠性高,克服了電磁型中間繼電器導線過細易斷線的缺點。
2.功耗小,溫升低,不需外附大功率電阻,可任意安裝及接線方便。
3.繼電器觸點容量大,工作壽命長。
4.繼電器動作后有發光管指示,便于現場觀察。
5.延時只需用面板上的撥碼開關整定,延時精度高,延時范圍可在0.02-5.00S任意整定。
公司介紹:上海上繼科技有限公司是一家專業從事電力系統繼電保護及智能電網電力自動化產品的研發、設計、生產、銷售和服務為一體的高科技公司。擁有資深繼電保護專家團隊和國內**的檢測儀器及校驗設備。同時還引用國內外先進技術,來進行技術創新。本公司的產品廣泛用于電力、工礦、鐵路、建筑等國家重大工程輸配變電系統上,產品遠銷東南亞及中東地區。產品通過國家繼電保護及自動化設備質量監督檢驗中心檢測,獲得ISO9001國際質量體系認證。“科技創新,誠信務實”是公司的經營理念,本公司以高超的技術支持和對用戶高度負責的售后服務贏得了輸配電成套企業的信賴,且樹立了良好的信譽。
上海上繼科技有限公司(專注電力保護繼電器生產廠家)銷售熱線:021-57233089 QQ:1932551438
{以上內容僅供參考,上海上繼科技有限公司有最終解釋權}
更多繼電器精彩文章——JZ-S/349B靜態可調延時中間繼電器應用范圍及接線圖





